Kirkkonummi_Library_nordic_Copper_Facade-scaled
Kirkkonummi Library by JKMM Architects
Copper Stories
Copper is an inherently timeless material that ages beautifully and we expect the library to look even better in 50 years’

Nordic Brown Light pre-oxidised copper cladding, in the form of large shingles and vertical fins structuring glazing, creates a strong civic identity for the expanded and remodelled library in Kirkkonummi, Finland.

Known as Fyyri, the revitalised building exemplifies a new generation of Finnish libraries which its architects, JKMM, have been active in shaping. These new libraries are conceived as vibrant, multipurpose facilities at the heart of communities, that still retain the core concept of places for reading, research and learning.

Location Kirkkonummi, Finland    
Material Nordic Brown Light
Year 2020
Designer JKMM Architects
Redefining the Library Typology

As JKMM founding partner Teemu Kurkela explained: ‘The library typology in Finland has changed. They are no longer solely about books but also getting together to share knowledge and experiences through multiple channels. They are not unlike community halls, which is why Finns today refer to libraries as public living rooms.’

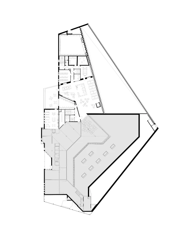
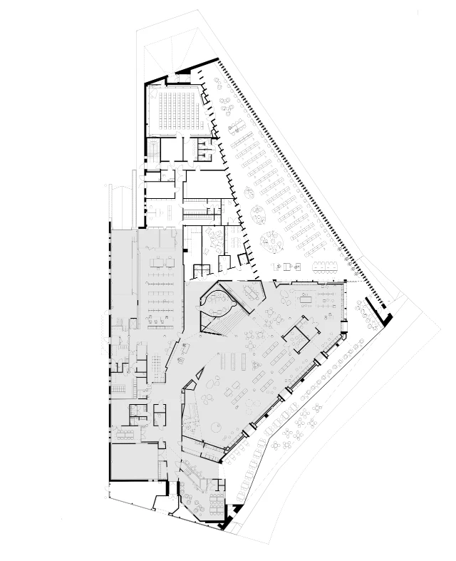
Fyyri is a sustainable, adaptive reuse of the original 1980s concrete library building, utilising its embodied carbon. JKMM have remodelled it and doubled its size, introducing new spaces for community uses such as toddler groups, youth clubs, exhibitions, events and performances. They also completely redesigned the interiors, finished throughout with white walls alongside slatted timber walls and ceilings, integrating the original concrete column structure.

Nordic Brown Light Skin

Externally, the new library is clad in Nordic Brown Light pre-oxidised copper enwrapping the building and giving it a unity and strong presence as a civic landmark.

Teemu Kurkela said: ‘The neighbouring medieval church has a distinctive green copper roof and we created a dialogue between the old and the new. The library and church are both accessible to all and we wanted this feeling of openness to be part of the architectural language of our design.

For the library, we sought a material that expresses the valuable role of the building: to respect knowledge. Libraries have a very long lifespan, so it is sustainable to use a facade material with an exceptionally long life. Copper is, of course, a material befitting public buildings and has a particular tactile quality with a unique sense of warmth. It is an inherently timeless material that ages beautifully and we expect the library to look even better in 50 years.’

Nordic Brown provides the same oxidised brown surface that otherwise develops over time in the environment. The thickness of the oxide layer determines the colour of the surface finish, with darker or lighter (Nordic Brown Light) shades of brown. Nordic Brown Light gradually changes over time to a stable dark chocolate brown.

Unified by Materiality

At Fyyri, Nordic Brown Light copper is used in several architectural forms – unified by their materiality – notably, distinctive shingles generating diagonal wave-like patterns.

Teemu Kurkela added: ‘Both the interior and exterior of the library are inspired by the traditional life of fishermen surrounding Kirkkonummi, as well as Finnish nature –common themes in our work. The shingle patterns bring to mind images of fishing nets, particularly fitting for a city with an extensive and beautiful coastline, and maritime heritage.

‘The copper shingles are at the same time functional, modern and timeless. Previously, we used similar Nordic Brown Light shingles to clad our extension to Alvar Aalto’s landmark Seinäjoki Library. But at Kirkkonummi, we used slightly larger shingles to make the pattern stronger, and arranged them at a more dynamic angle’.